



Linsfiber för bastuaggregat Cariitti 2700K med CR-09 guldfattning
3,5 m fiber
Artikelnummer 1532633
Levereras inom: 30 arbetsdagar
Beskrivning
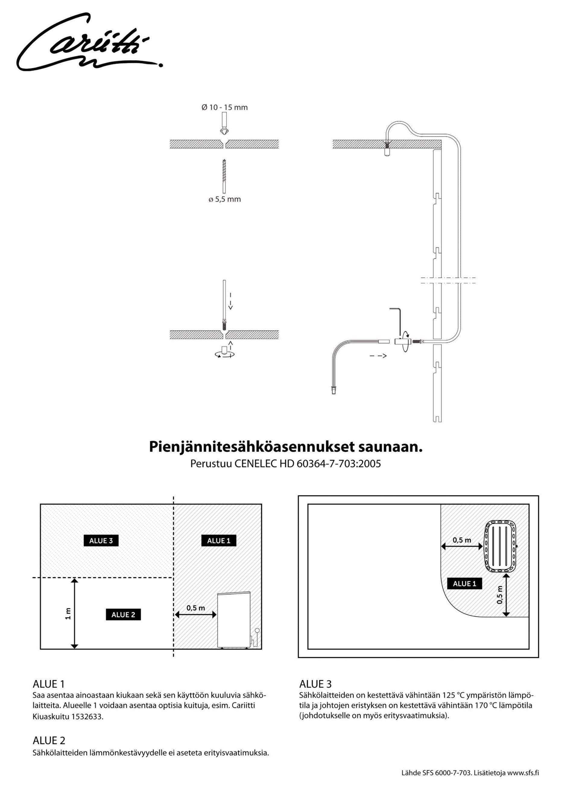
Med en kaminlinsfiber kan du utöka din bastu-LED-belysning med en kaminlampa. Ljuset leds över kaminen med hjälp av en glasfiber som belyses av en LED-lampa. I fiberns ände monteras en lins. S-flex 3 fiber (3,5 m eller 5 m), en kaminlins CR-09, LED 1W och adapter ingår.
Läs merVariant
Förpackningsdimension
| Bredd | 110mm |
|---|---|
| Höjd | 10mm |
| Djup | 380mm |
| Volym | N/A |
| Vikt | 0.16kg |
Rätt belysning i bastun på rätt plats
Det går jättebra att kombinera flera olika ljuskällor i din bastu för att skapa en mysigare miljö. Ett bastubad ska ge dig en harmonisk och lugn känsla och med hjälp av en väl planerad bastubelysning gör du din bastu till en lugn oas som du kommer att längta tillbaka till. Vi har ett stort utbud av olika belysningslösningar för bastu i olika former, material och typ som kan monteras på vägg, i tak och i bastulaven och bastupanelen. Glöm inte att all installation av bastubelysning ska göra av elektriker och att det krävs minst en halvmeter mellan din belysning och bastuaggregatets placering. Välj den bastubelysning som passar din bastu bäst. Vi är en komplett leverantör av bastutillbehör och bastuprodukter - från bastubygget till bastubadet. Bastubutiken har alla Bastutillbehör du behöver för ett bastubad utöver det vanliga.
Skapa stämning med bastubelysning
Hur bra din bastu än må vara så är det med en väl anpassad bastubelysning du hittar den rätta stämningen. Har din bastu ett varmare och rogivande sken blir det enklare att koppla av och njuta av ditt bastubad. Det finns massor av anpassad belysning för bastu så det kan vara bra att ta dig tid att verkligen planera vilken typ av belysning du vill ha och var de ska placeras. Bastubelysningen har även en praktisk funktion beroende på vad du vill göra i din bastu. Behöver du ha belysning som gör att du kan läsa i din bastu eller vill du hellre ha en belysning som skapar spännande effekter tillsammans med ditt bastuaggregat?
Välj bland en rad olika alternativ för bastubelysning. Upplysta bassänger, termometrar, väggar i krossat glas med färgskiftningar och till och med integrerade lampor i bastuaggregatet.
Bastu tillbehör för bastubadaren
Hitta Bastutillbehör som gör ditt bastubad till en ren njutning. Stort utbud av produkter och tillbehör för härlig doft i bastub och mer bekvämlighet i samband med ditt bastubad. Vi har även härlig kroppsvård att använda i samband med bastubadet och anpassade textila tillbehör du behöver när du bastar. Hitta dina favoriter bland vårt stora utbud av tillbehör till bastubadet. Vi har även flera färdiga presentförpackningar med exempelvis olika dofter till bastun som passar perfekt för den mest inbitne bastubadaren.
Bastutillbehören för din bastu
Hos Bastubutiken hittar du allt för din bastu. Vi har ett stort utbud av bastutillbehör av hög kvalitet som får din bastu lite mer personlig och gör din bastuupplevelse till det där lilla extra. Ett besök i bastun ska vara njutbart och göra dig avslappnad. Fyll därför din bastu med de bastutillbehören som passar dina behov och tar din bastu till en högre nivå.
Inredningsdetaljer som sätter pricken över i:et
Hitta din favorit bland massor av roliga bastutillbehör som gör din bastu lite mer personlig. Se vårt stora utbud av läckra aggregatdetaljer i täljsten för både ånga och dofter, snygga bastuset med matchande stäva och skopa för ångande värme samt övriga bastudetaljer som exempelvis klädhängare, bastuhögtalare och termometrar och ventiler för bastu. Det är tillbehören i din bastu som gör avtryck på bastuupplevelsen. Vi är en komplett leverantör av bastutillbehör och bastuprodukter - från bastubygget till bastubadet. Bastubutiken har alla Bastutillbehör du behöver för ett bastubad utöver det vanliga.
Belysning ger inspiration till ditt liv
Bra belysning är en konstform. Belysning skapar stämning, uttrycker din personlighet och ökar komforten. När du väljer en ljusdesign i god tid är allt möjligt. Om bara en enda armatur kan förvandla ett utrymme och dramatiskt förändra dess stämning, föreställ dig då vad vi kan uppnå när vi designar din belysning från grunden.
Cariitti är ett familjeägt företag som ger ljus och komfort till alla utrymmen. Vårt sortiment omfattar mångsidiga belysningslösningar samt bastulavar och omklädningsrumsmöbler, allt tillverkat i Finland. Cariitti har årtionden av erfarenhet av belysningstillverkning, och 2018 utökade vi vårt sortiment med bastuinredningskollektionen TAIVE.
Nyckelflaggsymbol och klassificering enligt utsläppsklass M1
På Cariitti är vi verkligen stolta över att bära den prestigefyllda symbolen Nyckelflaggan, som tilldelas av The Key Flag Symbol Committee efter ansökan för en period på tre år. Symbolen är inte bara ett märke, den är en återspegling av vårt engagemang för finsk excellens, ett bevis på vår hängivenhet att leverera de allra bästa produkterna och tjänsterna. Vi är stolta över varje aspekt av vår verksamhet, från vår lokala produktion som stöder finskt hantverk och sysselsättning till våra hållbara metoder. Dessutom har de byggmaterial som vi använder utsläppsklass M1, vilket är en indikator på våra produkters låga koldioxidavtryck.
Med en kaminlinsfiber kan du utöka din bastu-LED-belysning med en kaminlampa. Ljuset leds över kaminen med hjälp av en glasfiber som belyses av en LED-lampa. I fiberns ände monteras en lins. S-flex 3 fiber (3,5 m eller 5 m), en kaminlins CR-09, LED 1W och adapter ingår.

Beskrivning
Med en kaminlinsfiber kan du utöka din bastu-LED-belysning med en kaminlampa. Ljuset leds över kaminen med hjälp av en glasfiber som belyses av en LED-lampa. I fiberns ände monteras en lins. S-flex 3 fiber (3,5 m eller 5 m), en kaminlins CR-09, LED 1W och adapter ingår.
Läs mer