



Bastuugn COZY SW
12 kW
Artikelnummer 48051
Levereras inom: 5 arbetsdagar
Beskrivning
Hjärtat i varje bastu är kaminen. För att få en riktigt behaglig och mild värme krävs en kamin av hög kvalitet – annars blir bastuupplevelsen lätt obekväm. COZY är en vedeldad bastukamin som levererar mjuk, långvarig och naturlig värme, perfekt för dig som vill ha en autentisk bastuupplevelse.
Läs merTillval
Skorsten
Tillbehör
-
KOLO Bastutermometer 2 Svart Emendo518 SEK -
KOLO Bastustäva 4 Svart Emendo963 SEK -
KOLO Bastuskopa 2 Svart Emendo518 SEK -
KOLO Bastuhink 2 Svart Emendo1 092 SEK -
KOLO Bastuset Hink/Skopa Svart Emendo1 407 SEK
Förpackningsdimension
| Bredd | 60mm |
|---|---|
| Höjd | 90mm |
| Djup | 60mm |
| Volym | N/A |
| Vikt | 80kg |
Aggregat
| Basturum | 6-12 m³ |
|---|---|
| Stenkapacitet | 120 kg |
| Vikt | 65 kg |
| Höjd | 816 mm |
| Bredd | 490 mm |
| Djup | 500 mm |
| Max längd av vedträn | 300 mm |
| Rökkanal (⌀) | 115 mm |
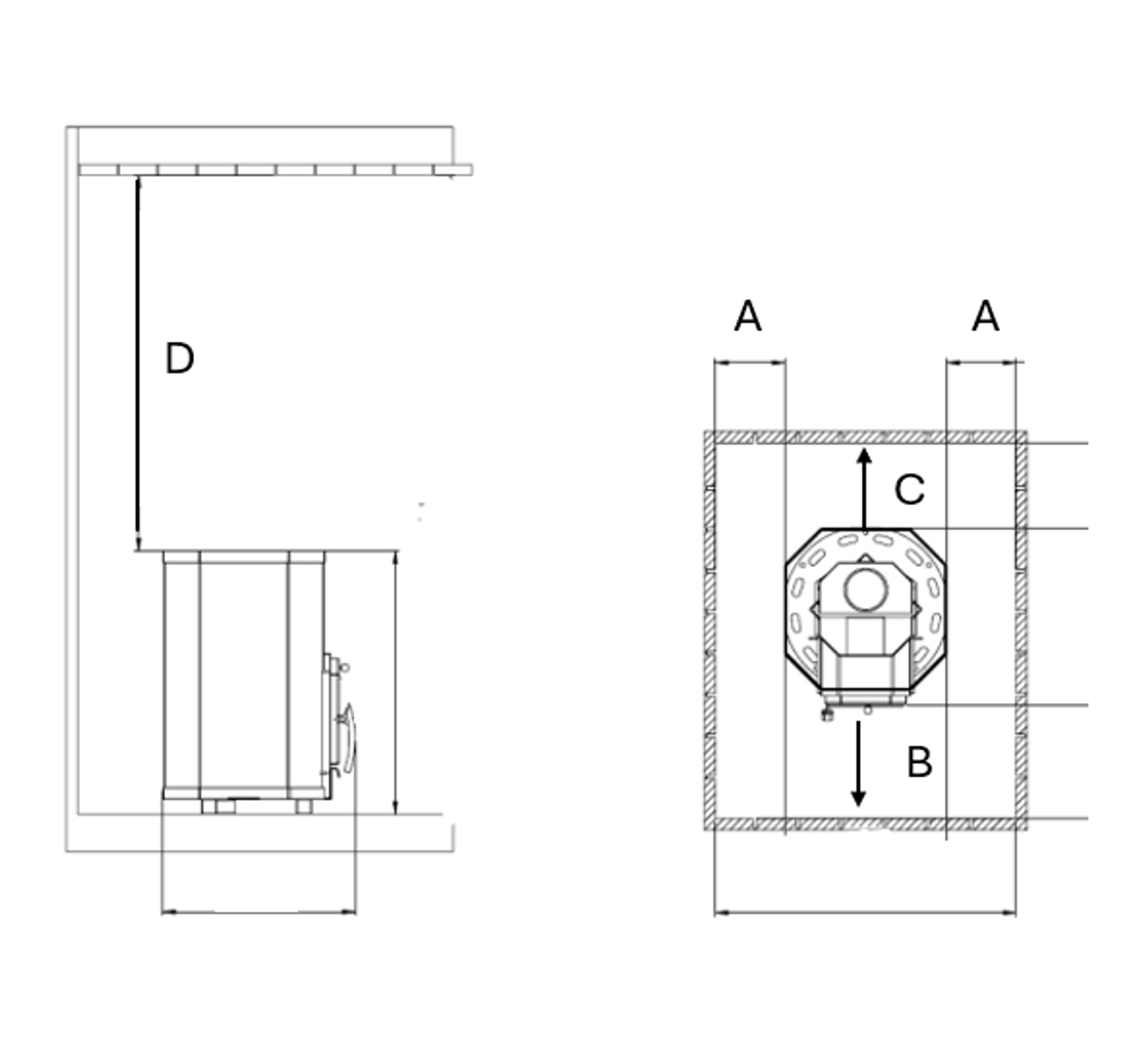
Säkerhetsavstånd
| A | 170 mm |
|---|---|
| B | 500 mm |
| C | 230 mm |
| D | 1130 mm |
Specifikation
| Modell | COZY SW 12 kW |
|---|
Välkommnen till COZY Själva hjärtat i en bastu är värmaren. Om värmen inte är mild och du känner dig obekväm, är det oftast kaminen som är problemet. Vedeldade kaminer är bäst för mild och långvarig värme; de är gjorda för att skapa ånga genom att kasta lite vatten på stenarna. Vi har producerat bastustenar i mer än femton år och våra specialister känner till alla hemligheter för en bra bastu sedan generationer tillbaka. Våra kaminer är unika i Estland. Vi är de enda producenterna som uppfyller de tyska BIMSCH-certifikatkraven i TÜV-testet utan stödutrustning. Kaminen behöver minst 25 % mindre bränsle jämfört med liknande värmare. I testet behövdes det till och med 40 % mindre bränsle. Rökgaserna är sex gånger renare jämfört med liknande värmare.
Läs mer
Vedeldade bastuaggregat Vedeldade bastuaggregat ger den mest traditionella och genuina bastuupplevelsen. Med kraftfull värme, mjuk ånga och den speciella känslan av sprakande ved skapar dessa aggregat en atmosfär som inte kan ersättas av elaggregat. Hos Bastubutiken hittar du vedeldade aggregat i flera storlekar och modeller – anpassade för både små privata bastur och större bastuhus. Oavsett om du bygger nytt eller renoverar din bastu erbjuder våra vedeldade aggregat hög kvalitet, effektiv värmespridning och lång hållbarhet. Välj ett aggregat som kombinerar traditionellt hantverk med modern teknik för bästa resultat. Fördelar med vedeldade bastuaggregat Vedeldade aggregat är uppskattade för sin unika karaktär och förmåga att skapa en naturlig, mjuk bastuupplevelse. De ger snabbt och jämnt värme, samtidigt som de skapar en avkopplande miljö fylld av doft och ljud från veden. Ger en genuin och traditionell bastukänsla Kraftfull värme med mjuk och behaglig ånga Kräver ingen elektricitet Passar perfekt för bastustugor och fritidshus Hög värmeeffektivitet och lång livslängd Möjlighet till utomhusskorsten för flexibel installation Material & kvalitet Våra vedeldade aggregat tillverkas av robust stål, gjutjärn och värmetåliga material som säkerställer hållbarhet även vid frekvent och hög värme. De är byggda för att tåla intensiv användning och ge jämn värmespridning i bastun. Du hittar modeller i olika utföranden, allt från kompakta aggregat till större varianter med glaslucka för maximal mysfaktor. Många av våra modeller är dessutom CE-märkta och uppfyller europeiska säkerhetskrav. Tips vid installation För att få bästa värme, längre livslängd och en trygg installation rekommenderar vi följande: Säkerställ rätt avstånd till brännbart material Använd godkänd skorsten eller rökkanal Placera aggregatet så att värmen sprids jämnt i bastun Kontrollera ventilationsflödet i bastun Använd rätt typ av bastustenar Följ alltid tillverkarens installationsanvisningar Trälister Bastuskorsten Stenar till bastuaggregat Bastubutiken erbjuder ett brett sortiment av vedeldade bastuaggregat för både små och stora bastuprojekt. Med hög kvalitet, effektiv värmespridning och snabb leverans hjälper vi dig att skapa en bastu som kombinerar tradition och funktion på bästa sätt. Kontakta oss gärna om du behöver rådgivning kring val av modell, installation eller tillbehör – vi hjälper dig hela vägen till en perfekt bastuupplevelse.
Läs mer
Bastuaggregat för alla typer av bastur Hos Bastubutiken hittar du ett brett utbud av bastuaggregat anpassade för både små och stora bastuprojekt. Oavsett om du bygger en ny bastu, renoverar eller uppgraderar ett äldre aggregat, har vi modeller som levererar jämn värme, hög säkerhet och lång livslängd. Välj mellan elektriska bastuaggregat, vedeldade aggregat, samt smarta tillbehör som styrningar, aggregatskydd och bastustenar – allt utvalt för att ge dig en optimal bastuupplevelse. Fördelar med moderna bastuaggregat Ett bra bastuaggregat är hjärtat i din bastu. Moderna aggregat är framtagna för att vara både energieffektiva och robusta, samtidigt som de ger mjuk och behaglig värme. Fördelar med våra bastuaggregat: Jämn värmespridning och snabb uppvärmning Energieffektiv drift Hög säkerhet med smarta skyddslösningar Passar både små och stora bastuvolymer Finns i både el- och vedeldade alternativ Stilrena och moderna designval för alla miljöer Elektriska bastuaggregat Elektriska aggregat är det mest populära valet för hemmaspa och moderna bostäder. De är enkla att installera, smidiga att använda och kräver minimalt underhåll. Välj mellan modeller med inbyggd styrning eller aggregat som kombineras med separat styrenhet. Perfekt för dig som vill ha maximal kontroll över temperatur och tid. Fördelar: Enkla att installera Exakt kontroll över temperatur Snabb uppvärmning Passar de flesta bastur Vedeldade bastuaggregat För dig som vill ha en mer genuin bastutradition erbjuder vi effektiva vedeldade aggregat som ger den klassiska, mjuka värmen från brinnande ved. Dessa är perfekta för stugor, fritidshus och utomhusbastur. Fördelar: Autentisk bastukänsla Hög värmekapacitet Passar platser utan el Robust konstruktion Tips när du väljer bastuaggregat Att välja rätt aggregat innebär att balansera design, funktion och kapacitet. Här är några tips för bästa resultat: Anpassa aggregatet efter bastuns volym Välj rätt typ – el eller ved Säkerställ korrekt ventilation Kontrollera att aggregatet har rätt säkerhetsavstånd Använd stenar av hög kvalitet för jämn värme Komplettera gärna med ett aggregatskydd för extra trygghet Tillbehör till bastuaggregat Vi erbjuder flera viktiga tillbehör som förbättrar både funktion och säkerhet: Bastustenar Skyddsplåtar och aggregatskydd Styrenheter Inbyggnadsramar Installationstillbehör Bastupaneler för vägg och tak Vedeldade bastuaggregat Bastulav och inredning Bastubutiken erbjuder ett komplett sortiment av bastuaggregat för alla behov – från kompakta elaggregat till kraftfulla vedeldade alternativ. Hos oss hittar du även rätt tillbehör, bastustenar och styrningar för att skapa en säker, effektiv och njutbar bastu. Har du frågor om bastuaggregat eller vilken modell som passar din bastu bäst? Kontakta oss så hjälper vi dig hela vägen.
Läs merHjärtat i varje bastu är kaminen. För att få en riktigt behaglig och mild värme krävs en kamin av hög kvalitet – annars blir bastuupplevelsen lätt obekväm. COZY är en vedeldad bastukamin som levererar mjuk, långvarig och naturlig värme, perfekt för dig som vill ha en autentisk bastuupplevelse.
Inkluderar
Vedeldat bastuaggregat.
Bastuaggregatet kräver även
Stenar och skorstensanslutning.
Fördelar
- Extremt låg bränsleförbrukning
- Renare förbränning
- Säkrare installation
COZY är designad för att skapa rikligt med ånga när du kastar vatten på stenarna, vilket ger en mjuk och behaglig värme som varar länge.

Beskrivning
Hjärtat i varje bastu är kaminen. För att få en riktigt behaglig och mild värme krävs en kamin av hög kvalitet – annars blir bastuupplevelsen lätt obekväm. COZY är en vedeldad bastukamin som levererar mjuk, långvarig och naturlig värme, perfekt för dig som vill ha en autentisk bastuupplevelse.
Läs merTillval
Skorsten
Tillbehör
-
KOLO Bastutermometer 2 Svart Emendo518 SEK -
KOLO Bastustäva 4 Svart Emendo963 SEK -
KOLO Bastuskopa 2 Svart Emendo518 SEK -
KOLO Bastuhink 2 Svart Emendo1 092 SEK -
KOLO Bastuset Hink/Skopa Svart Emendo1 407 SEK
